Tổng quan dự án chung cư MB Land 219 Trung Kính
Tên dự án: Khu hỗn hợp cao tầng văn phòng, dịch vụ thương mại và nhà ở 219 Trung Kính (MB Land)
Vị trí dự án: 219 Trung Kính, P. Yên Hòa, Q.Cầu Giấy, Hà Nội
Chủ đầu tư dự án: Công ty TNHH 19-12 Bắc Hà
Giá bán chung cư MB Land: từ 30-35 Triệu/m2
Quy mô dự án:
+ Tổng diện tích: 7.106 m2
+ Đất xây dựng:
+ 3 tòa tháp cao 29 tầng bao gồm 05 tầng thương mại dịch vụ, 02 tòa căn hộ và 01 tòa văn phòng.
+ Số căn hộ: 400 căn
Diện tích căn hộ từ:
+ 3 Tầng hầm: Khu để xe ô tô, xe máy.
+ Tầng 1 – 6: Khu trung tâm thương mại, dịch vụ
+ Tầng 7 – 29: Khối căn hộ để ở được thiết kế với các loại diện tích khá đa dạng từ 64,7m2 đến 69,9m2 và các căn hộ có từ 2 phòng ngủ.
Kiến trúc: Thiết kế theo phong cách và lối sống thông minh hiện đại
Tiến độ hoàn thành và đưa vào sử dụng: Qúy IV 2017
Vị trí dự án căn hộ chung cư MB Land Trung Kính
Vị trí căn hộ chung cư MB Land:
Nằm gần khu tập thể Cục Cảnh Sát Điều Tra C45, tọa lạc tại mặt đường Trung Kính – số 219 Trung Kính, Quận Cầu Giấy, TP Hà Nội; Chung cư 219 Trung Kính Quận Cầu Giấy sở hữu một vị trí đắc địa trung tâm quận Cầu Giấy, nơi có vô số các cơ quan quan trọng của Hà Nội và chính phủ như: Thanh Tra Chính Phủ; Bộ Nội Vụ; Bộ Tài nguyên & Môi trường; Bộ Kế hoạch & Đầu tư; Viện kiểm sát nhân dân Tối Cao (đang xây dựng); Tổng cục Hải Quan; Tổng cục đường bộ; Viện dầu khí Việt Nam;…
Dự án cách:
- Grand Plaza: 1.3km
- Trường THPT Yên Hòa: 700m
- Trung tâm hội nghị quốc gia: 1,5km.
- Bệnh viện Giao thông vận tải: 1,5km
- Trường Amsterdam: 1,3km
+ Công viên Cầu Giấy: 1km
+ Đại học Phương Đông: bên cạnh
+ Big C Thăng Long: 1,2km
Từ vị trí của dự án chung cư 219 Trung Kính Quận Cầu Giấy việc di chuyển tới các tiện ích xung quanh như Bệnh viện 19-8; bệnh viện Giao thông Vận tải TW; các trường học từ mầm non, trường quốc tế cho tới trường Đại Học nổi tiếng; Công viên lớn, bến xe, các khu đô thị lân cận, chợ và siêu thị;… chỉ với bán kính chưa đầy 1.5KM.


Tiện ích nội khu chung cư hỗn hợp MB Land 219 Trung Kính
Chung cư 219 Trung Kính được thiết kế hiện đại theo tiêu chuẩn quốc tế Châu Âu nhằm mang lại cho cư dân có một cuộc sống hoàn hảo – khẳng định đẳng cấp. Tại dự án MBLand Central Point 219 Trung Kính được các nhà thiết kế tích hợp hầu hết được đầy đủ mọi tiện ích của một chung cư cao cấp như: Trung tâm thương mại tiêu chuẩn quốc tế, phòng tập Gym, bể bơi, khu vui chơi, khu thể thao, spa – chăm sóc sắc đẹp,… nhằm mang tới cho cư dân có một không gian sống hoàn hảo nhất đầy đủ tiện nghi.
Mặt bằng dự án chung cư cao cấp MB Land 219 Trung Kính
Dự án Chung cư MB Land bao gồm 400 căn với 3 tòa tháp cao 29 tầng trong đó 2 tòa căn hộ và 1 tòa dành cho văn phòng, kết cấu gồm 2 tầng hầm, 5 tầng TTTM nối liền 3 tòa nhà. Mặt bằng các căn hộ cùng vị trí ở các tầng có thiết kế giống nhau, bài trí hợp lý, đi kèm là rất nhiều các dịch vụ tiện ích. Mỗi một mặt sàn được thiết kế chia thành 11 căn hộ với các loại diện tích như sau:

Mặt bằng dự án chung cư MB Land 219 Trung Kính

Mặt bằng cụ thể chung cư MB Land 219 Trung Kính
Mẫu thiết kế nội thất căn hộ nhà chung cư hỗn hợp MB Land 219 Trung Kính
1. Thiết kế nội thất căn hộ chung cư 69,7m2

Thiết kế nội thất căn hộ chung cư 73m2 tại MBland Central Point Trung Kính
Mẫu thiết kế bao gồm 1 phòng khách, 1 phòng bếp, 2 phòng ngủ, 2 nhà vệ sinh hiện đại tiện nghi
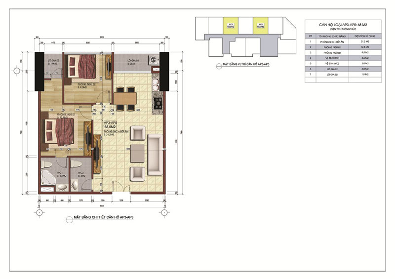
2. Thiết kế nội thất căn hộ chung cư 68m2 theo phong cách hiện đại

Thiết kế nội thất căn hộ chung cư 101, 105 m2 tại MBland Central Point Trung Kính
Mẫu thiết kế bao gồm: 1 phòng khách, 1 phòng bếp, 2 phòng ngủ, 2 nhà vệ sinh được thiết kế theo phong cách hiện đại với đồ nội thất cao cấp.
3. Thiết kế nội thất căn hộ chung cư 64,7 m2 theo phong cách hiện đại

Thiết kế nội thất căn hộ chung cư 64,7m2 tại MBland Central Point Trung Kính
Mẫu thiết kế bao gồm 1 phòng khách, 1 phòng bếp, 2 phòng ngủ, 2 nhà vệ sinh với điểm nhấn là bức tường xiết tạo nên một không gian phòng ngủ sáng tạo.
4. Thiết kế nội thất căn hộ chung cư 69,99 m2 theo phong cách hiện đại

Thiết kế nội thất căn hộ chung cư 69,99m2 tại MBland Central Point Trung Kính
Mẫu thiết kế gồm 1 phòng khách, 1 phòng bếp và 2 phòng ngủ, 2 nhà vệ sinh phù hợp cho gia đình có con nhỏ.
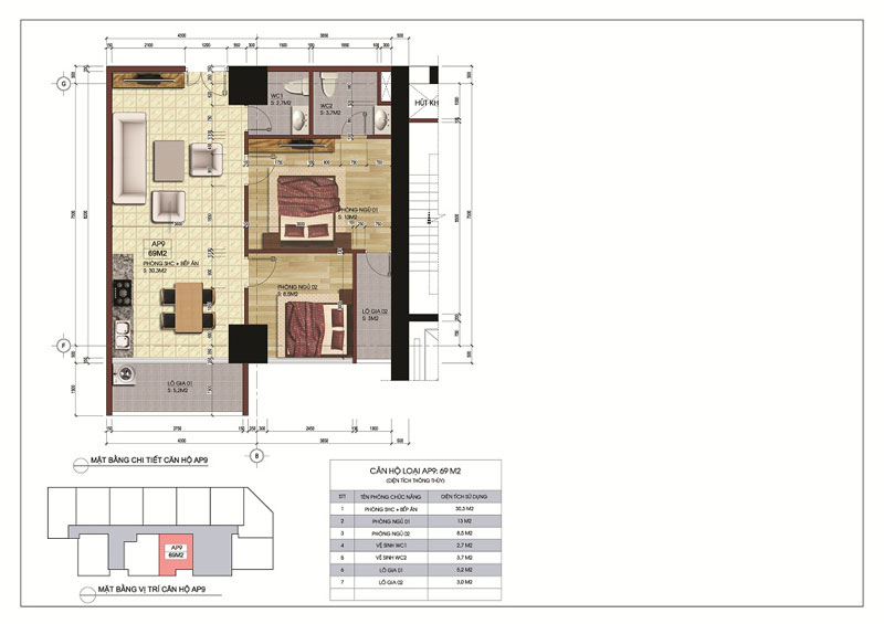
5. Thiết kế nội thất căn hộ chung cư 69 m2 sáng tạo

Thiết kế nội thất căn hộ chung cư 69m2 tại MBland Central Point Trung Kính
Mẫu thiết kế nội thất sử dụng phong cách hiện đại tối giản với 1 phòng khách, 1 phòng bếp, 2 phòng ngủ master điểm nhấn với đồ nội thất sáng màu tạo không gian thông thoáng.
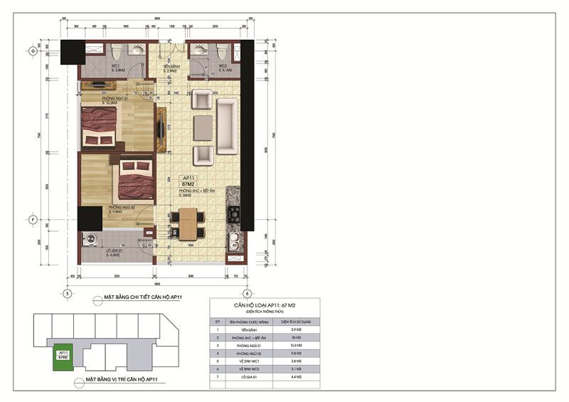
6. Thiết kế nội thất căn hộ chung cư 67 m2 thông minh, hiện đại

Thiết kế nội thất căn hộ chung cư 67m2 tòa MBland Central Point Trung Kính
Mẫu thiết kế ấn tượng với không gian 2 phòng ngủ dành cho gia đình 2 thế hệ có con lớn.
Là một dự án chung cư hỗn hợp vì thế cho nên việc chung cư tại MB Land luôn có được những phong cách thiết kế nội thất sáng tạo, khác biệt nhau tạo nên những không gian nhà sang trọng, đẳng cấp khác nhau. Nếu bạn muốn thiết kế nội thất căn hộ của nhà bạn thật khác biệt, nội bật thì hãy liên hệ với MOREHOME, với đội ngũ kiến trúc sư giàu kinh nghiệm đã có hàng nghìn mẫu thiết kế nổi tiếng trong khắp cả nước đảm bảo 100% chất lượng mẫu thiết kế và hơn hết đảm bảo sát tới 99% chi phí đầu tư sau khi hoàn thiện thi công nội thất. Hãy liên hệ với MOREHOME để sở hữu mẫu thiết kế chung cư đẹp nhất, ấn tượng nhất, MOREHOME luôn sẵn sàng tư vấn giải đáp toàn bộ thắc mắc của bạn: 097.543.8686
Thi công nội thất trọn gói căn hộ chung cư cao cấp Gold Season
MOREHOME nhận thi công từ thi công phần thô đến hoàn thiện nội thất trọn gói tại các căn hộ chung cư cao cấp Gold Season. MOREHOME tự tin với năng lực chuyên sâu trong lĩnh vực thi công nội thất sẽ đảm bảo 99% chất lượng thi công so với bản vẽ thiết kế 3D bởi MOREHOME không chỉ là công ty chuyên thi công nội thất mà chúng tôi còn là một trong các đơn vị hàng đầu về thiết kế nội thất, thi công nội thất theo bản vẽ thiết kế 3D và còn là đơn vị sản xuất nội thất nổi tiếng chất lượng uy tín tại Hà Nội, Đà Nẵng, Tp. Hồ Chí Minh. Cùng tham khảo một trong các công trình lớn tại Hà Nội được MOREHOME thi công dưới đây sẽ là minh chứng xác đáng nhận để bạn có một lựa chọn đúng đắn nhất hoặc liên hệ qua số hotline công ty: 097.543.8686 để được nhận tư vấn, báo giá thi công nội thất tại căn hộ chung cư hỗn hợp MB Land một cách chuẩn xác nhất.